Designed to Solve.
Built to Perform.
- Winter 2025/2026
- Cranemasters
That mindset has earned Cranemasters a reputation as a trusted problem solver for Class I railroads, short lines, regional networks, and private industrial siding customers alike. Whether it’s minimizing losses from derailments or cutting downtime during complex projects like complex panel replacements or track repairs, Cranemasters’ engineered solutions keep rail operations moving.
—Barry Isringhausen, President, Cranemasters
“Our approach is flexible,” said Aubrey Amadeo, Cranemasters’ COO. “We buy equipment then our engineers refine or repurpose to create a better solution that meets our customers’ needs—sometimes that means a new capability, other times a completely new design. We also purpose-build equipment from the ground up specifically for rail work.”
This hands-on approach enables Cranemasters to respond quickly and effectively to customer needs, while maintaining the high standards that define the company’s work.
The Drive to Innovate
Cranemasters’ engineering projects often begin with a customer challenge or they’re born from internal ideas to improve performance and expand fleet capability. Some of the best ideas start with a customer facing a singular difficulty.
Whatever the spark, the goal remains the same: to serve customers and the industry with practical, forward-thinking solutions.
Some common engineering and build considerations include:
- Transportation requirements in different states and provinces
Different climate and road conditions - Crane controls and improved technology
- Remote operation
- Functionality and efficiency of the equipment (i.e. self attaching counterweight)
- Lift capacity
Three Types of Cranemasters Engineering Jobs
New Product Development: Designing and building creative solutions for unique customer challenges—sometimes on a same-day turnaround for emergency needs.
Catalog Products: Developing reliable tools and equipment that can be produced repeatedly for a wide range of clients, with customizable options to fit specific applications.
Aftermarket Improvements: Upgrading existing equipment, whether it was initially built by Cranemasters or another manufacturer, with enhancements only Cranemasters can deliver.
A Recent Example of Working with a Client to Solve a Unique Challenge
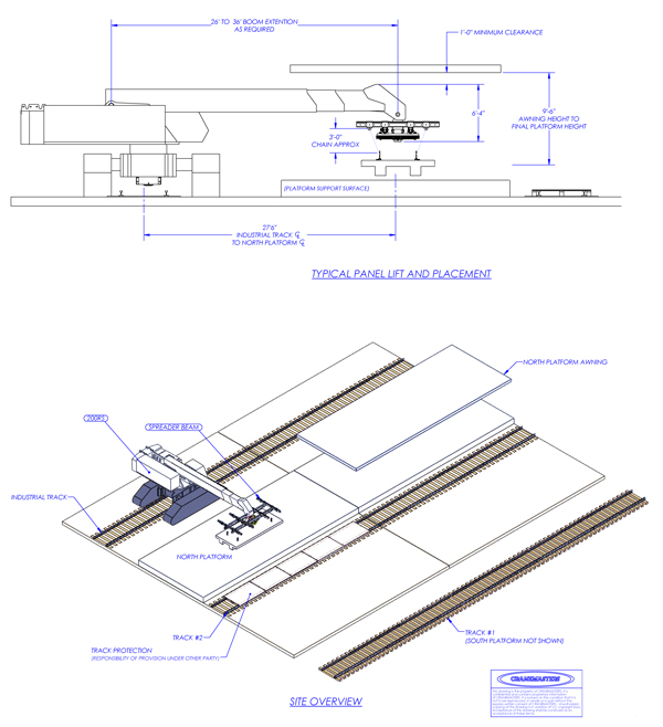
When Amtrak needed to install concrete precast beams (13,000–20,000 lbs) and precast concrete panels (11,000–32,000 lbs) within a covered space with low clearance, Cranemasters engineered a custom loading and rotation system. The historically significant pavilion’s canopy was too low for traditional crane operation, so Cranemasters engineered and built a custom lift beam on a slew ring for precise positioning. Together with the versatile Cranemasters 200 RS Super-Duty Crawler’s dynamic envelope and the custom lift beam, Cranemasters placed each giant element of the substructure precisely and without incident.
The Cranemasters 200 RS Crawler placing a large precast concrete panel utilizing the purpose-built lift beam.
“Innovation isn’t just about ideas—it’s about turning those ideas into reliable, proven tools.”
—Aubrey Amadeo, COO, Cranemasters
Partner with Customers
Cranemasters’ customer-centered approach ensures that each project meets real-world needs from concept to delivery—and long after. Collaboration begins at the project’s kickoff and continues through engineering, fabrication, and field testing.
Each project is assigned a dedicated project leader, typically an engineer, who keeps customers informed through regular updates and invites them to visit during key phases of the project. Once the final product is ready, Cranemasters’ experts provide on-site training, maintenance guidance, and warranty support. Follow-up visits at 90 days, 9 months, and 18 months help ensure performance and customer satisfaction, with extended service plans available beyond the warranty period.
Better By Design
Since 2012, Cranemasters’ engineering team has delivered over 300 internal and customer-driven solutions—each one reflecting the company’s commitment to innovation. From developing high-voltage proximity alarms for its own fleet to designing the next-generation Cranemasters crane, the team continues to push boundaries in rail engineering.
Recent achievements include the design, build, and delivery of 10 hi-rail cranes, along with specialized box trucks and major crane upfits—plus five additional cranes currently under construction. The team also creates dozens of lift plans each year to tackle complex, high-stakes jobs.
Each of these examples shows what sets Cranemasters apart: the ability to combine innovation, precision, and experience to solve rail’s toughest challenges—safely, efficiently, and reliably.
